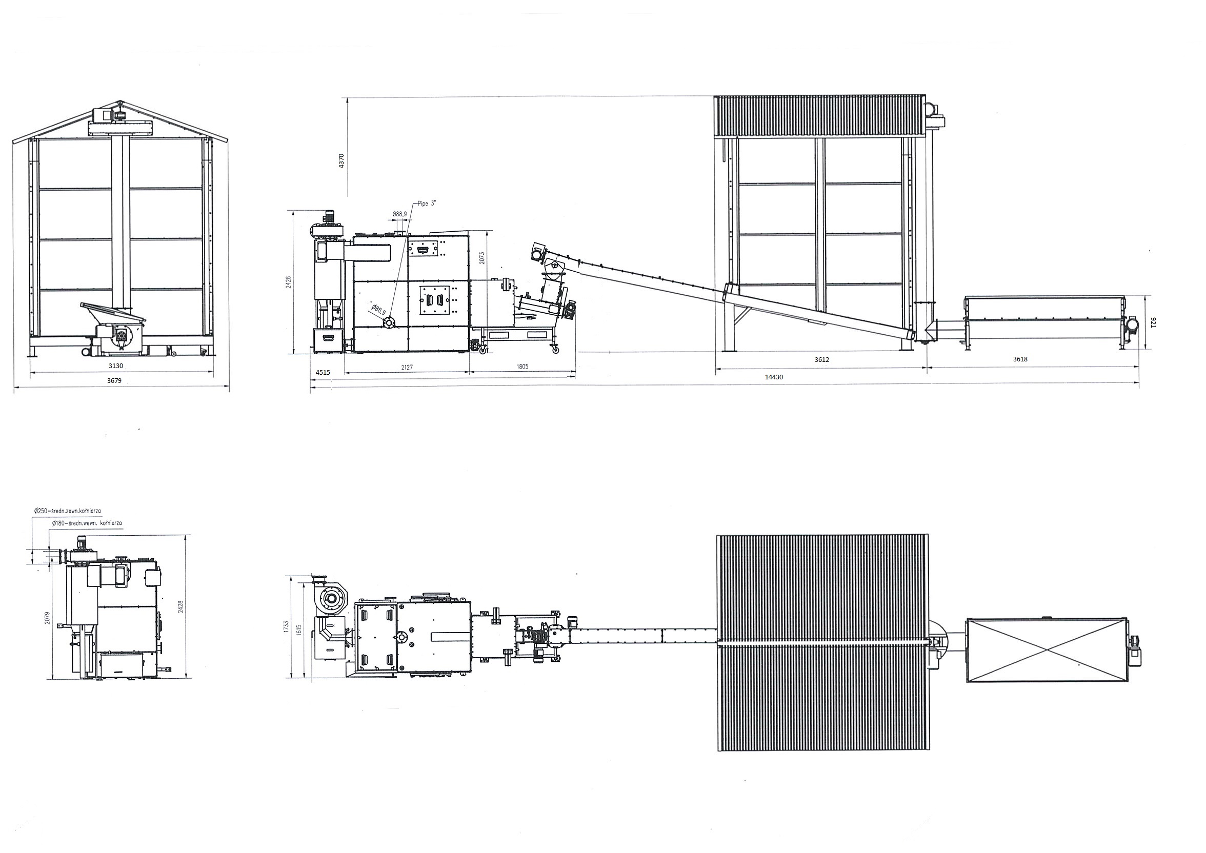
Hakkepuidu katel PREMIUM võimsusega 60,120 KW või 240 KW

Automaatne biomassikatel, mis on kohandatud taastuvate kütuste põletamiseks ja mille niiskusesisaldus ei ületa 35%.
Soojusvaheti on varustatud uuendusliku isepuhastusstisteemiga.
Iga seade on varustatud mitmeelemendilise tuleohutussüsteemiga. See koosneb toiteallikast, BVTS klapist ja toitejuhtme temperatuuriandurist. Nende elementide paigutus muudab selle ühe klassi koige turvalisemaks
- 2 etteande tigu ja tuleklapp nende vahel.
- Automaatne süütaja
- Katla sees olevad spiraalid mis puhastavad katelt pidevalt
- Automaatne tuhaeraldus süsteem
- Valjatõmbe ventilaator
- Erinevad kütused (hakkepuit,saepuru,lihvtolm,kerge brikett, koik mis on purustatud ja niiskusega kuni 35%.
- PLUM automaatika – kogu katlamaja juhtimine
- interneti moodul,väliõhuandur, akumulatsiooni paagi juhtimine, pumpade juhtimine, 3t/4t juhtimine jne.
- Automaatikaks ZAP- 14
Suur punkrite valik 4m3, 6m3, 8m3, 10,m3, 27m3 Või võimalus kasutada vedru laadimissüsteemi.










