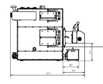
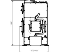
Pelletikatel Biomaster Max 120 kw on täisautomaatne isepuhastuv katel koos ise puhastuva pelletipõletiga Moderator, mille põlemise effektiivsuse ja kestvuse tõstmiseks on põlemiskaber seest tehtud keraamikaga. Pelletikatla isepuhastamise süsteem võimaldab lihtsat soojusvaheti torude puhastamist.
Kontroller juhib puhastustsüklite sagedust vastavalt etteantud parameetritele. Isepuhastamise süsteem toimetab kogunenud tuha mahukasse tuhakasti, mida on lihtne tühjendada.
Pelletikatla BioMaster Max 120 kW pikad hooldusintervallid on tagatud tänu suurele tuhakonteinerile, isepuhastuvale põletile, automaatsele katlatorude puhastusele. Pelletikatlale BioMaster Max on integreeritud suitsuventilaator.
Need kindlustavad puhta kütuse põlemise olenemata korstna tüübist ja väljas olevast ilmast. Katla kõrge kasuteguri (90%) kogu kütmise vältel tagavad patenteeritud turbulaatorid ja katlatorude automaatne puhastus.
KÜSI HINDA!!!








